Vid kommunstyrelsens arbetsutskott lämnades ett positivt besked gällande markanvisning på nya norra området i Hok. Kommunala bostadsbolaget står för önskemålet.
Lägenheter byggs i Hok
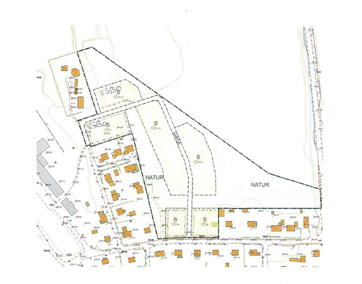
En detaljplan har tagits fram för att möjliggöra nya bostäder i Hok. Detaljplanen har vunnit laga kraft och det pågår nu planering för hur området kommer att se ut och även planer för kommande tomtsläpp inom området. En taxa för tomterna ska tas fram under våren och ett förslag på tomtindelning har tagits fram. Till arbetsutskottets sammanträde inkom en förfrågan gällande markanvisning för byggnation av lägenheter…
– Intresset för Hok är stort. Vi har fått en förfrågan gällande markanvisning och det kom till som ett extraärende under vårt sammanträde igår (reds anm; arbetsutskottets), berättar Gert Jonsson (M) ordförande i kommunstyrelsen.
– Det är stora tomter och jag antar att det kommunala bostadsbolaget väljer att bygga hyresrätter i flerfamiljshus. Hok är viktigt och det har funnits en stor vilja att kommunala bostadsbolaget väljer andra orter än just Vaggeryd och Skillingaryd. Det är bra om det finns andra boendeformer att välja på och inte bara villor, kommenterar Gert Jonsson (M).
Kenth Williamsson (S); – Viktigt att tillse alla behov och Hok ligger strategiskt till när det gäller pendling både norröver till logistikområden samt Vaggeryd och Skillingaryd.
Övriga tomter i det nya området i Hok anses som lämpliga för enskild byggnation.
Fotnot; Kommunala bostadsbolaget meddelar att man lämnar kommentar när kommunstyrelsen beslutat i ärendet och avtalet är signerat.
















Trevligt, ett stort lyft för Hok.
Jättebra! Vilket område gäller det?