Tankarna om satsningen på Pumparebron finns långt tillbaka i tiden.
”Att bara ha två broar över Lagan är en sårbarhet”
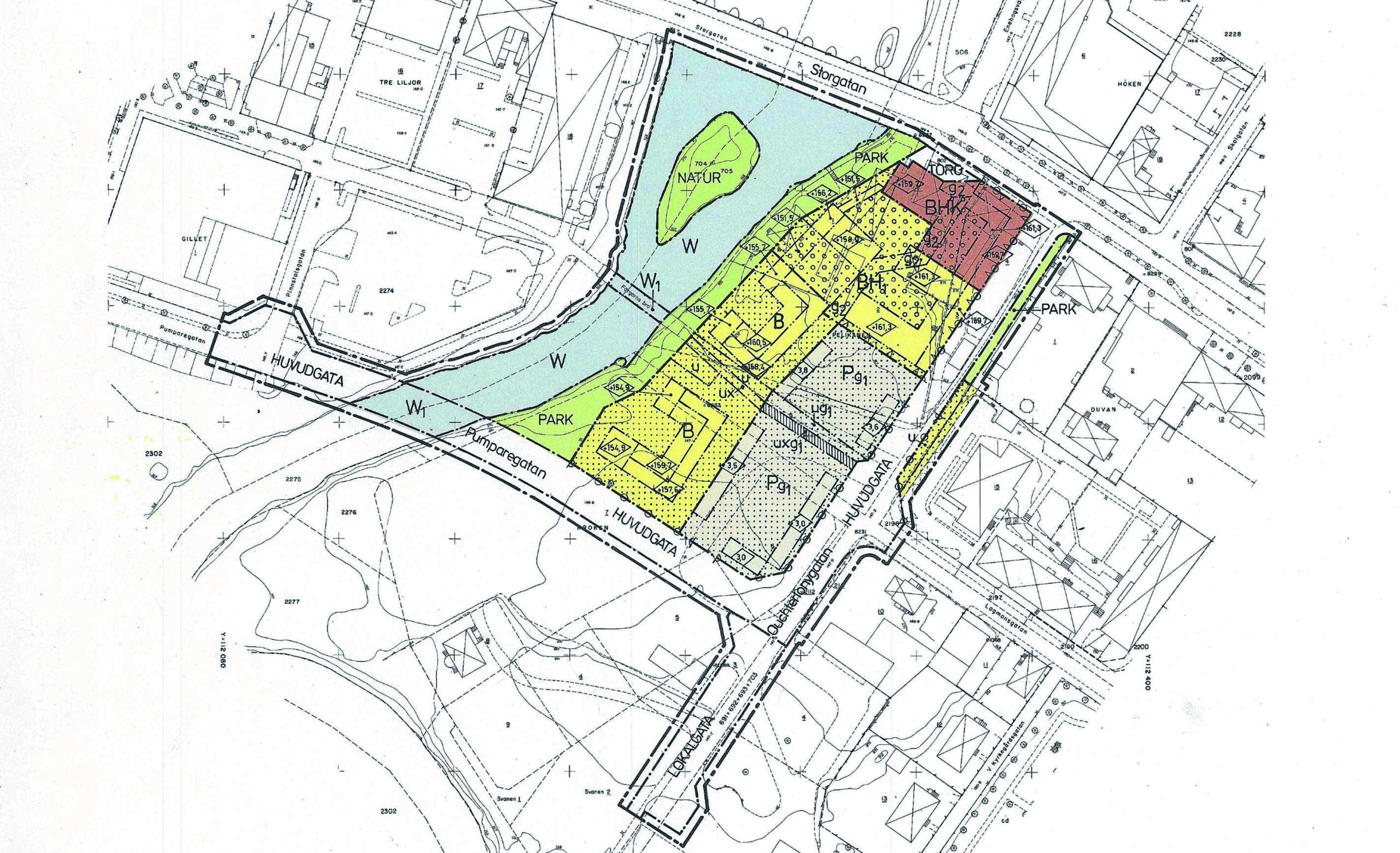
Just nu utreder teknik- och fritidsförvaltningen och samhällsbyggnadsförvaltningen förutsättningar för att kunna möjliggöra satsningarna på Pumpareleden och Uddeboleden i Värnamo. I samband med detta utredningsarbete har en engagerad läsare gjort en intressant upptäckt och tagit kontakt med tidningen. I detaljplanen för kvarteret Pelikanen, daterad den 1 augusti 1989, finns Pumparebron inritad i detaljplanen.
– Lite märkligt att den inte kommit upp tidigare utan ska marknadsföras som en ny lösning i trafikplanen nu, menar läsaren.
Vi bestämmer oss för att gräva vidare i frågan och kontaktar Värnamo kommun en enkel frågeställning Vi får kontakt med stadsarkitekten Henrik Storm.
På detaljplanen för kvarteret Pelikanen, F-243, daterad 1 den 1 augusti 1989 finns Pumparebron inritad. Först drygt 35 år senare marknadsförs den offentligt som en del av Trafikplan för Värnamo kommun. Hur kommer det sig att planerna på Pumparebron inte har kommit upp på agendan tidigare?
– Idén om en bro i ungefär det läget är faktiskt ännu äldre! Den finns med i Albert Lilienbergs stadsplan från 1921 (fastställd 1928), visserligen i en lite annan vinkel men i ungefär samma läge.
– Bron har, såvitt jag vet, sedan bekräftats i alla efterkommande stads- och detaljplaner. I F 169 från 1970 finns bron illustrerad och även om den inte var avsedd att fastställas då så framgår det av handlingarna att Pumparegatan har höjdsatts för att möjliggöra en ny bro.
– Precis som du noterat så finns bron med i F 243 från 1990 och om man läser sist i planhandlingarna så framgår det att det finns knappt fem miljoner kronor avsatta i investeringsprogrammet från 1991–92 för att bygga bron. Jag vet inte hur diskussionerna gick då, men det är väl inte en alltför vågad gissning att bron ströks ur budgeten på grund av 90-talets finanskris.
– Tredje bron som den ibland kallats har också funnits med i trafikplanerna från 1960- och 1970-talen. I Centrumplanen från 1979 bedömde man att bron skulle vara verklighet 1990.
Varför har planerna på en tredje bro inte presenterats tidigare?
– Det är nog inte konstigare än att bara ha två broar över Lagan är en sårbarhet som planerare och arkitekter har kunnat identifiera i alla tider. Förutsättningarna har ju förändrats en hel del sedan 1921! Sedan dess har ju faktiskt två broar tillkommit över Lagan - 27:an i söder och Ljussevekaleden i norr. Hade inte dessa tillkommit hade sannolikt behovet av en tredje bro i centrum blivit akut för länge sedan.








Om man kalkylerar sårbarhet så är det inte något som blivit mer aktuellt nu än för 20 år sedan.
Att komma över ån finns nu fyra broar: riksväg 27, Ljussevekaleden, Åbron och Lagastigen. När E4:an, riksväg 27 samt landsväg 151 var genomfart på endast två broar, Lagastigen och Åbron, så var sårbarhet betydligt högre. Vi behöver inte fler broar i Värnamo, kanske en vid Varpvägen om det anses kritiskt att fyra broar inte räcker att nå city om norra delen av Värnamo utvecklas och bebyggs med bostäder i stället för jordbruksmark i söder.
Det finns även ett förslag om att koppla ihop Ringvägen med Västermogatan för att avlasta centrum, sedan i vart fall 1950-talet. Det är inte heller aktualiserat, men kommer nog att bli akut i samband med nya polishuset och utryckningsvägar till centrum. Denna sträckning skulle avlasta både Malmövägen, Lagastigen och Växjövägen för att enkelt komma till stationen/Centrum. Pumparebron som skissades på 20-talet var med den gamla smala stenbron på Storgatan innan det blev en nybyggd och bredare valvbro cirka 1940. Därefter fanns inget behov av ytterligare en bro i centrum. Inte nu heller.